Vanjska jedinica DX7290 Premium

Vanjska jedinica Dry Ager koja bilo koju rashladnu ćeliju ili hladnu komoru pretvara u komoru za suho odležavanje ili u komoru s kontroliranom klimom. Posebno je praktično ako želite preurediti već postojeću ćeliju/komoru. Kompresor, kondenzator, isparivač i tehnologija suhog odležavanja u jednoj jedinici kao kompaktno, utično stropno rješenje.
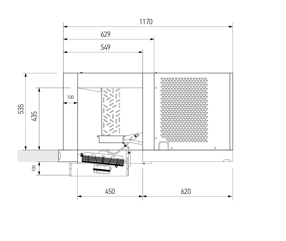
Dimenzije (D x Š x V): 1170 × 945 × 535 mm
  • Šifra: DA0101014
  • Kat. broj: DX7290

Specifikacije

Naziv proizvoda Vanjska jedinica DX7290 Premium
Maksimalni kapacitet komore (m3)

16

Rashladno sredstvo

R290

Sustav hlađenja

Dinamički

Kapacitet hlađenja pri sobnoj temp. od 0°C i temp. okoline od 32 °C (W)

1450

Sobna temperatura

+10°C do 38°C

Frekvencija (Hz)

50

Priključni napon (V)

230

Raspon temperature u odjeljku za hlađenje

od 0°do 25°C

Boja kućišta

Nehrđajući čelik

Regulacija vlage (%)

60-90

UVC sterilizacija

Da

Ugljeni filter u kompletu

Da

Priključak na dovod vode

Ne

Razina buke (dB(A))

80

Toplinski izlaz (W)

1900

Vrsta kompresora

Klipni kompresor (potpuno hermetički)

Neto težina 120 kg